
“科学实验建筑是指为科学研究、实验、检测等活动提供空间环境的场所,包括与之相关的建筑物、构筑物及场地等。”——《建筑设计资料集》第三版,2017
我们以标准院作品-从事化学和生物技术研究的商业类科学实验建筑设计北大医疗产业园的介绍为例,解读模块化、通用性及人性化设计在现代科学实验建筑设计中的重要作用。

近代科学研究始于文艺复兴之后的欧洲,为了满足科学研究工作的需要,一种新的建筑类型—科学实验建筑由此诞生。当前,科学研究的发展对科学实验建筑设计提出了更高、更新的要求,包括室内环境(采光质量和通风效果)、交往空间、配套的设备管线及系统(通风、事故报警系统)等等。这使得科学实验建筑设计比普通民用或工业建筑更为复杂、更为专业,因此,如何合理、有效地解决这些问题对于满足科学实验工作的需要尤为重要。

▲北大医疗产业园--简洁明确的体块构成,强烈的虚实对比,凹凸有致的处理手法使建筑立面产生丰富的光影效果,建筑细部设计严谨、细腻。
项目概况
北大医疗产业园项目位于北京市昌平区回龙观镇中关村国际生命医疗园,总用地面积约14公顷。由北大国际医院集团有限公司开发建设,建筑群主要由化学实验楼、生物实验楼、科研楼、教培中心、员工宿舍等组成,共分两期建设,总建筑面积约22万平米,一期总建筑面积约16.7万平米。其中化学实验楼一栋,建筑面积约2万平米,生物实验楼五栋,每栋建筑面积约1.5~1.7万平米。

项目依托北大国际医院集团的资源,引入研发类科技企业,因此在规划布局上要考虑均好性,单体设计要考虑最大的通用性与灵活性。
移步异景的蝶形布局
建筑群主要沿南北街区布置,向中间绿化带倾斜,呈蝶形布局。建筑组群在用地中间围合成东西向的内部园林空间,由此形成建筑组群的外部城市界面和内部园林界面。
▼外部城市界面



外部城市界面相对完整、简洁,与周边用地的建筑相协调;内部园林界面则相对活跃、自由,通过对建筑形体的扭转,营造出丰富多变的室外空间,结合园林景观设计,以期达到步移景异的中国园林建筑的特色。
▼内部园林界面



这种建筑布局方式获得了较大的绿化用地,绿地率达到41.6%,1#至5#楼均有较好的园林景观,实现了建筑的均好性。
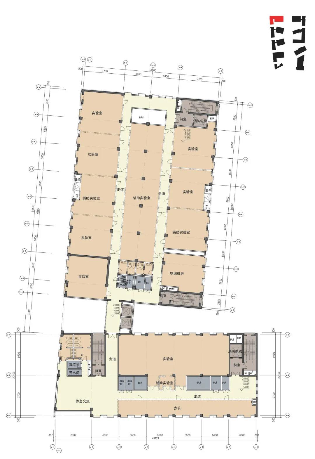
模块化的平面布局
1#至5#楼平面布局均采用L形平面,短边采用单走廊系统,一侧为实验室,另一侧为研究办公室,整体进深20.4米,每层建筑面积约950~1200平米;长边采用双走廊系统,设环形走道,两侧布置实验室,中间布置辅助实验室,整体进深33.6米,每层建筑面积约1400~1700平方米。

两个边各设两部楼梯、一部货梯、一组设备竖井、一处卫生间,设备竖井集中布置在中间或者端头,便于长短边分开出租使用。L形转角处,阳角位置首层设主入口门厅,标准层设休息交流空间;阴角位置设两部客梯,附近设空调机房一处,位置居中,便于整栋建筑使用。
基本实验室模块
基本实验室模块的开间、进深、层高的尺度必须依据科研人员的行为模式以及实验室仪器设备的布置要求而定。本项目按照通用性考虑,选取了常规尺度,开间为3.3m,进深为9.7m。

层高的确定主要取决于实验建筑的类型,空调系统管道、静压箱等设备所占用的空间对层高影响较大。本项目在层高选取上预留了一定的富余量,其中1#化学实验楼,因考虑设置通风柜加装过滤器的要求,层高相应加高,为5m。2#至5#生物实验楼,首层层高为6m,标准层为4.8m。

试验室风井设置
实验室的实验过程中,经常会产生各种难闻的、有毒有害的或易燃易爆的气体,需要及时收集,尽快排出实验室,导致实验室的进排风量巨大,需要预留大尺度的风井。本项目每层预留的进风井面积约15~17㎡,排风井面积约25~32㎡。屋面预留了大量的风机基础。为了保证建筑立面效果,四周外墙向上升高约4.5m,侧面设置大面积百叶,用于遮挡屋面风机。

交流空间设置
交流空间为研究人员提供了沟通与交流的场所,伴随现代科研工作的发展与需要,交往空间已成为科学实验建筑不可缺少的空间组成部分。本项目每层在临街位置,结合主入口以及外立面设计,设置了交往空间,面积约150㎡,在平面布局上位置居中,且视野开阔。首层临街一侧还预留了少量餐饮条件,供研究人员集中就餐和休息。

本项目在规划布局、建筑功能、环境景观的设计中体现了对科学实验建筑中人性化的理解。通过营造优良的环境空间与氛围,为科学研究人员进行创造发明提供了舒心的工作环境。其中的科学实验建筑使用了模块化的实验单元,并采用合理的平面开间、进深、层高,集中式的进排风井布局,有效满足了企业的研发需求,同时,还满足了未来可能的建筑物改造的需求,体现了科学实验建筑设计中的通用性与灵活性。
标准院作品-北大医疗产业园
“绿谷”式的科研场所
-让生命更健康,让科研更舒适-

北大医疗产业园设计人员
业 主 单 位:北大国际医院集团有限公司
建筑设计单位:中国建筑标准设计研究院有限公司
联合设计单位:无
团队成员:
建 筑:刘庆、林琳、张东华、王晓然、周鹏、陆亚娟、田琪
结 构:刘国友、白梅、王赞、王寒冰、陈雪光
给排水:曾涌涛、王岩、李晓峰
暖 通:李本强、刘冰
电 气:高丽华、刘轶、杨宏宇、刘霄、李立晓
项目信息数据:
建设地点: 北京市昌平区回龙观镇
总建筑面积:22万平方米
项目状态: 已投入使用
设计时间:2010年-2011年
摄影版权:中国建筑标准设计研究院有限公司

京公网安备 11010202010460号